Lord Cecil Court, Thetford

Sold Subject to Contract £170,000

2 1 1
SITUATION LOCATION Chilterns are pleased to bring this two bedroom mid terraced home to the market which is situated in an ideal town centre location. The property has undergone some improvements with the current owners however still offers a purchaser the opportunity to add their own stamp. The property is being offered on a chain free basis and an early viewing is highly recommended!

Thetford is situated in the south of Norfolk, in close proximity to the county border with Suffolk. By road it is 33.8 miles (54.4 km) northeast of Cambridge and 30.7 miles (49.4 km) southwest of Norwich. It lies on the River Little Ouse. On the western side of Thetford is Thetford Forest, which is heavily forested with pine trees. Brettenham Heath National Nature Reserve is to the northeast, near the hamlet of Roudham. To the southeast of Thetford is Nunnery Lakes Nature Reserve, covering about 200 acres, with Breckland heath, woodland, fen and open water habitats and 2 kilometres (1.2 mi) of paths.

The town is well served and includes a mainline railway station with easy access to London, The Midlands and The North. There are the usual town centre amenities and there is a sports centre complex with swimming pool. Located within the Brecks and with easy access to the surrounding beautiful pine forests Thetford is well located for a range of outdoor activities. There is also a range of primary schools within the town, private school (Thetford Grammar) and secondary/sixth form (Thetford Academy).

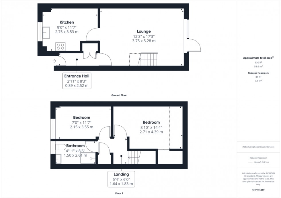
ENTRANCE HALL UPVC sealed unit double glazed door to front, fitted storage cupboards, laminate flooring, radiator.

LOUNGE Electric fireplace, UPVC sealed unit double glazed door to rear with UPVC sealed unit double glazed floor to ceiling window to rear, laminate flooring, radiator.

KITCHEN Fitted with a range of base and wall mounted kitchen units with work surfaces over incorporating one and half bowl sink unit with mixer tap over, tiled splash backs, UPVC sealed unit double glazed window to front, cupboard housing new gas combi boiler, space for fridge freezer, space and plumbing for washing machine, electric oven and hob with extractor over, radiator.

LANDING Doors to all first floor accommodation, fitted carpet, storage cupboard.

BEDROOM ONE Fitted storage cupboard, Velux window, fitted carpet, radiator.

BEDROOM TWO UPVC sealed unit double glazed window to front, fitted carpet, radiator.

BATHROOM Fitted three piece suite comprising; WC, wash basin, walk in shower cubicle with rainfall shower head over, half tiled walls, access to loft space, UPVC sealed unit double glazed window to front, heated towel rail, vinyl flooring.

OUTSIDE To the front of the property there is a parking space for one car and a pathway leading to the front entrance door.

The rear garden is sectioned on two tiers with the top tier mainly laid to lawn. There is a paved patio area, garden shed and the rear is enclosed by wooden fencing.

SERVICES Mains services including electricity, gas central heating, water and drainage are connected to the property.

EPC EPC D.

COUNCIL TAX Band A.
  • Ideal first time or investment purchase
  • Opportunity to add your own stamp
  • Town centre location
  • Walking distance to Castle Park & Nuns Bridges
  • Cul-de-sac position
  • Replacement modern bathroom suite
  • Mid terraced two bedroom house
  • Replacement gas boiler (July 2025)
  • Allocated parking
  • Offered on a chain free basis!
Floorplan for Lord Cecil Court, Thetford
EPC Graph for Lord Cecil Court, Thetford
Similar Properties

Get an instant online valuation

Find out how much your property is worth